By clicking on ‘Allow all cookies’, you agree to the storage of cookies on your device to improve navigation on the website, to analyse the use of the website and to support our marketing activities. Further information can be found in our privacy policy.
Cookie settings

Old building renovation in Berlin Mitte

Bauherr
private
Architekten

Atelier Anjora - completed as part of studio kejo

Berlin Mitte
2023
-
2023
CONCEPT + PLANNING + IMPLEMENTATION
Info

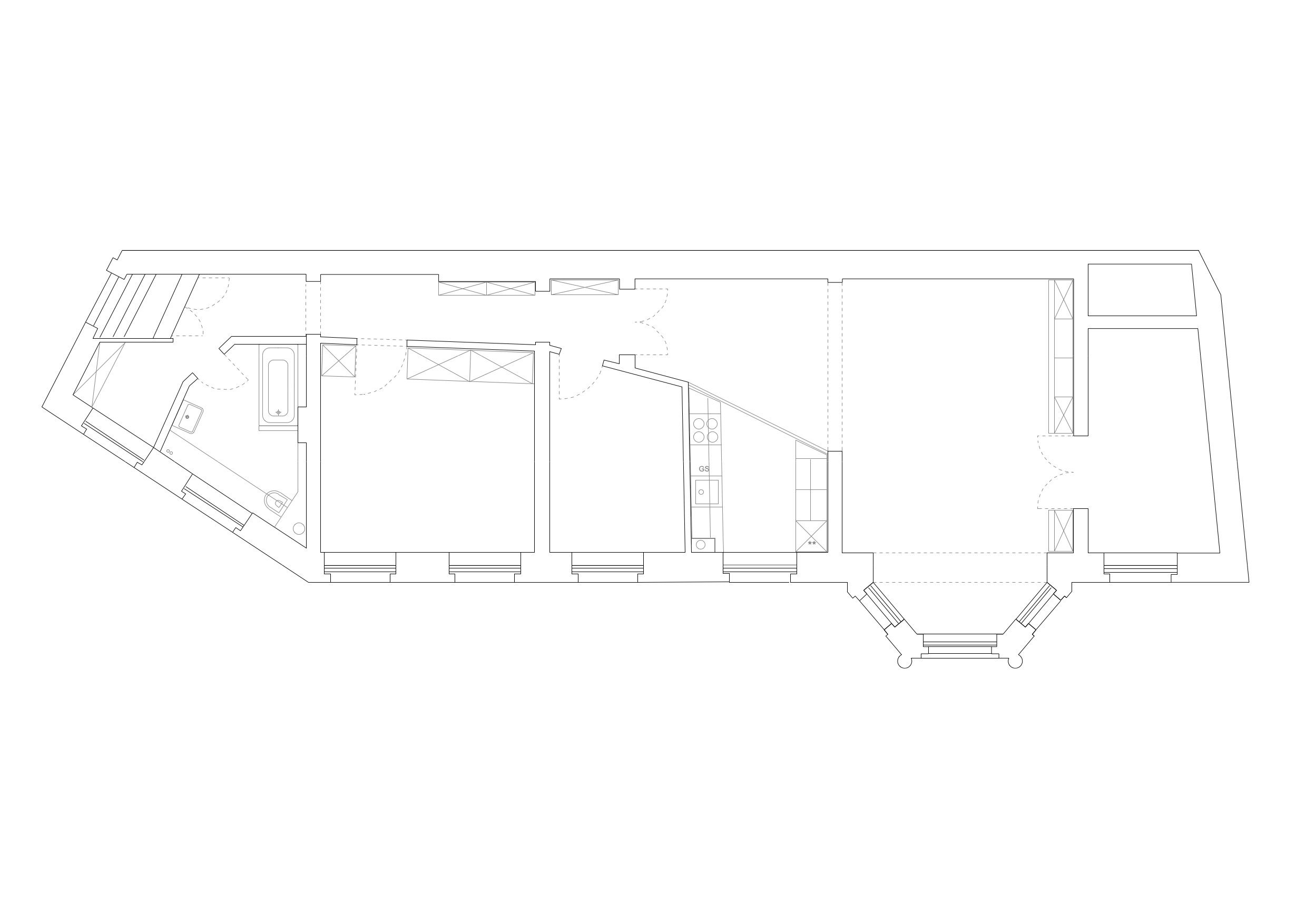
The core renovation of a 110 square metre apartment in an old building in Berlin Mitte included a change of floor plan to make the room more modern, brighter and friendlier. Great importance was attached to maximising the storage space. The room sizes and individual shapes of the old building were taken into account to meet the user's requirements. The result is a successful combination of historical charm and contemporary design.

Anjora Design Altbausanierung Berlin
Anjora Design Altbausanierung Berlin Grundriss
Anjora Design Altbausanierung Berlin Grundriss 2
Anjora Design Altbausanierung Berlin 2
No items found.