SANTA CATALINA
Atelier Anjora
A three-storey townhouse with a roof terrace and basement is planned for an infill site in the Santa Catalina district of Palma de Mallorca. The building closes a gap between two existing neighbouring structures and integrates into the established urban fabric in terms of scale, proportion, and façade rhythm. The aim is to create a contemporary residential building that incorporates and reinterprets local architectural elements.
The façade combines restrained modern design with materials typical of the region. A natural stone base forms the lower part of the building, while a light, natural-coloured plaster finish defines the upper façade. Wooden windows and traditional sun-shading panels reference characteristic elements of Mallorcan townhouses and create a calm, contextually appropriate appearance within the streetscape.
One of the main challenges of the project is natural daylight, as the adjacent buildings limit daylight access to two façades. The internal layout addresses this condition through a clear vertical organisation and the careful placement of living spaces to maximise the amount of natural light reaching the interior.
The house is functionally organised across three main levels. The ground floor forms the communal living area and opens directly onto a private garden. A large folding window element spans almost the entire façade width and can be fully opened, creating a seamless transition between interior and exterior spaces. The garden is complemented by a small pool and an outdoor kitchen.
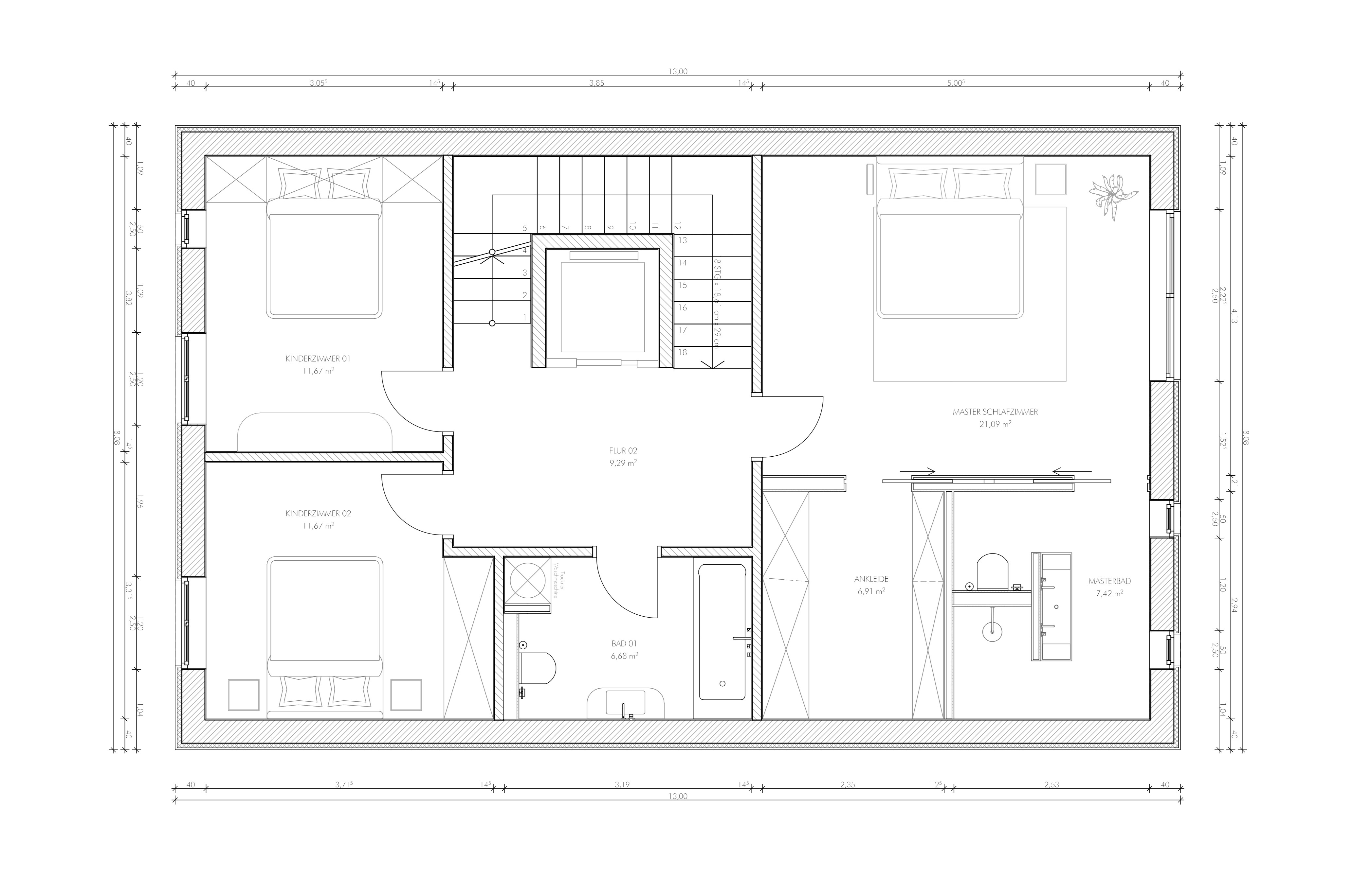
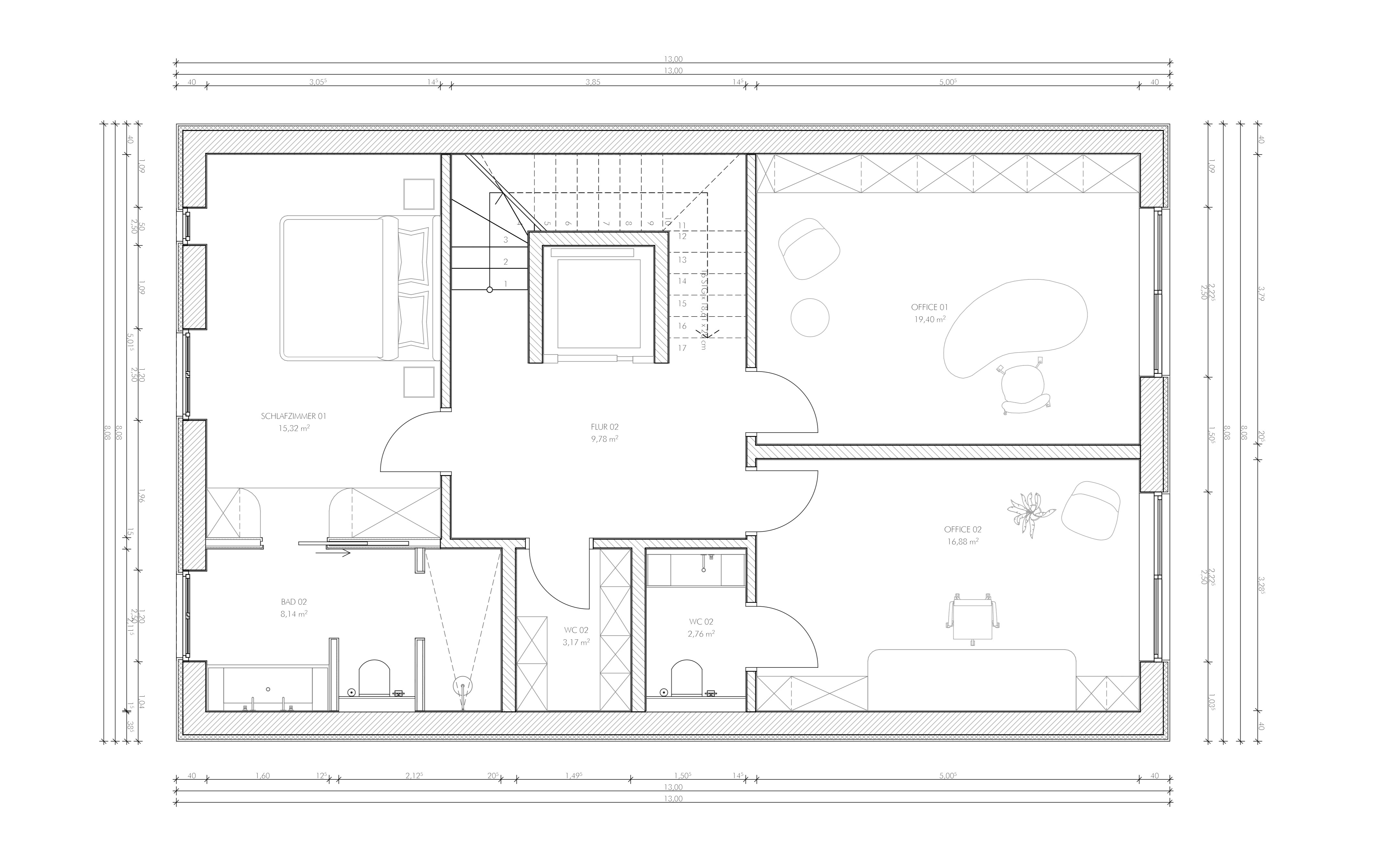
The first floor accommodates a compact family level with the private bedrooms. The second floor provides space for a home office and guest rooms. A roof terrace offers additional outdoor space with views over the rooftops of Santa Catalina.
The basement contains technical and utility rooms as well as a garage, which is accessed via a car lift. The project combines a clear, contemporary architectural language with local materials and integrates naturally into the surrounding urban structure.















