Finca Cala Anguila
Atelier Anjora
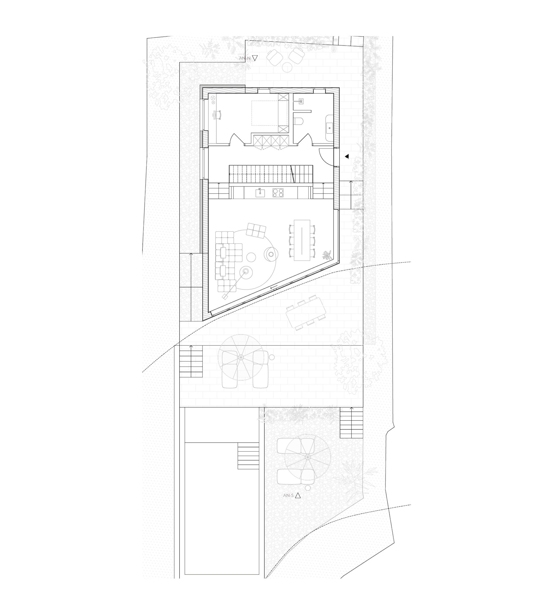
Auf einem außergewöhnlichen Grundstück an Mallorcas Steilküste mit direktem Zugang zum Meer entstand der Entwurf für ein Neubauprojekt, das sich offen zum Wasser orientiert und zugleich Schutz vor den Nachbargrundstücken bietet. Große Fensteröffnungen rahmen den Blick auf das Meer und lassen das mediterrane Licht tief ins Innere des Hauses fallen.
Der Entwurf interpretiert moderne Architektur durch eine mallorquinische Perspektive. Klare, kubische Formen treffen auf natürliche Materialien und warme Texturen. Eine Fassade aus Naturstein, großformatige Stahl-Glas-Elemente und markante Cortenstahlrahmen schaffen ein ausgewogenes Spiel zwischen Offenheit und Beständigkeit.
Die Materialität steht im Mittelpunkt: Jede Fläche und jeder Übergang wurden mit Bezug zur umgebenden Landschaft gestaltet. So entsteht ein zeitgenössisches Haus, das modern wirkt und dennoch tief in der mallorquinischen Baukultur und Landschaft verwurzelt ist.










