Finca Cala Anguila
Atelier Anjora
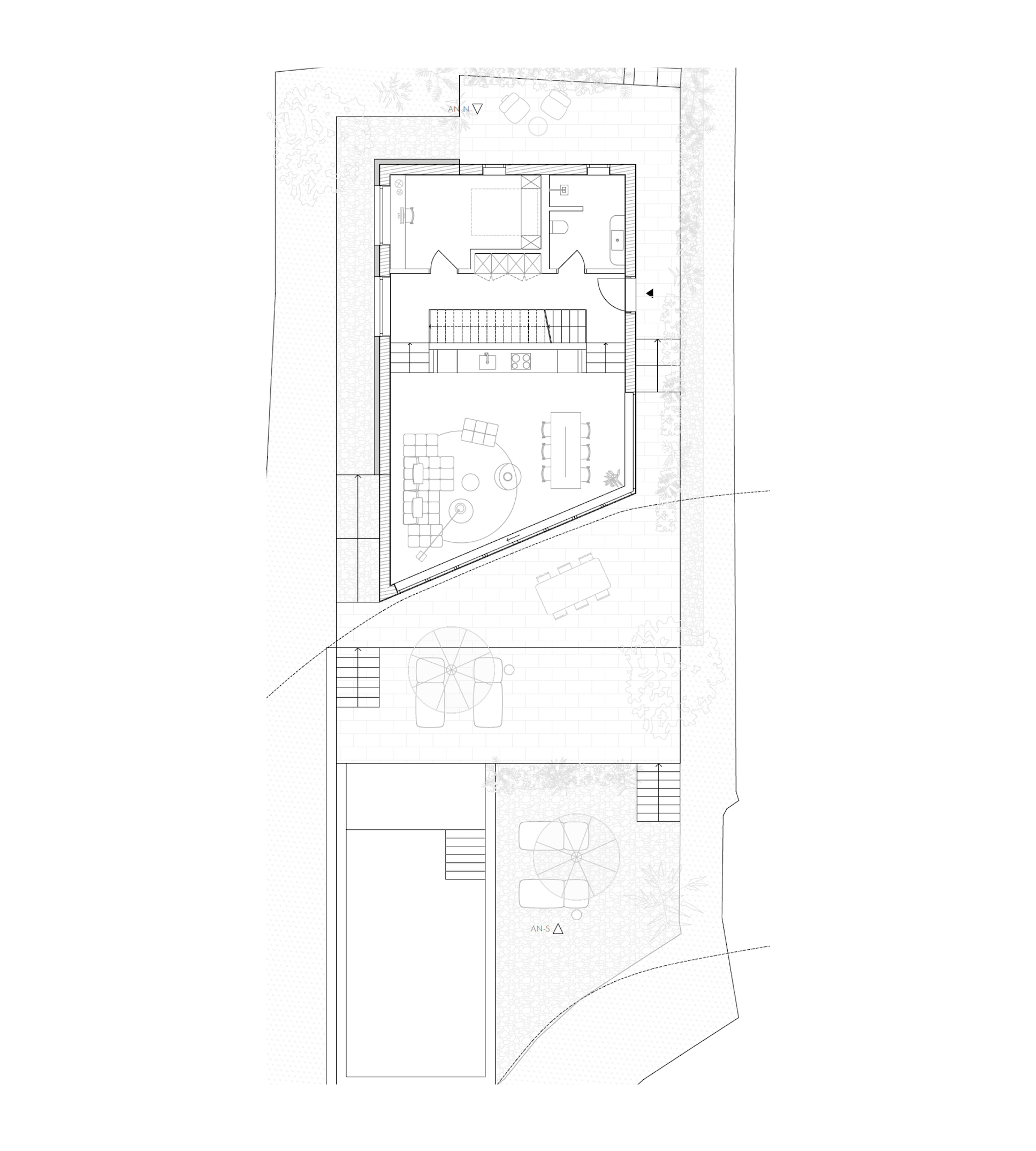
On an exceptional plot of land on Mallorca's cliffs with direct access to the sea, the design was created for a new building project that is open to the water and at the same time offers protection from neighboring properties. Large window openings frame the view of the sea and let the Mediterranean light fall deep into the interior of the house.
The design interprets modern architecture from a Majorcan perspective. Clear, cubic shapes meet natural materials and warm textures. A natural stone façade, large-format steel-glass elements and distinctive corten steel frames create a balanced balance between openness and durability.
The focus is on materiality: Each area and every transition was designed with reference to the surrounding landscape. The result is a contemporary house that looks modern and yet is deeply rooted in Majorcan building culture and landscape.










